Ready-to-go Australian small house plans
Your first step to creating a joy-filled, lower-impact life
Dreaming of building a sustainable, small-footprint home that’s kind on your wallet and our planet? Our energy-efficient House Plan Packs make it easy. Sidestep the guesswork and budget blowouts, and build for a fraction of the usual cost with our professionally designed plans.
You want to build small & sustainable, but don’t know where to start
With so many options for building a home in Australia, it’s easy to:
Waste hours researching builders and designers, sifting through dozens of generic Australian small house plans, only to feel more confused, drained and no closer to a decision.
Worry that building ‘sustainably’ will blow your budget, while struggling to find a truly energy-efficient house floor plan that’s affordable and fully aligns with your values.
Drown in endless design choices, overwhelmed by options and red tape — only to end up with a plan you can’t afford to build or that doesn’t quite fit your life.
The best ideas from 350+ sustainable house builds, distilled to 4 thoughtful designs
Over the past decade, our talented small team has built hundreds of passive solar houses across southern Australia. Now, we’ve packaged up every learning and award-winning design tweak into four Australian small house plans, intentionally designed to reduce building costs without cutting corners on comfort, cosiness or energy efficiency. The plans feature:
Simple rectangular structures, because corners cost money in the building world.
Consolidated plumbing zones grouped together: less pipework = less labour costs.
Straight runs of joinery, which save thousands on kitchens and bathrooms.
Deconstructed bathrooms that offer flexibility for couples or families, without needing two bathrooms.
Active hallways that double as laundry, study or storage — making every square metre work harder.
And living decks to create generous outdoor living spaces without the price tag of extra internal areas.
The result? Plans that are easier to build, faster to complete and more affordable overall — without compromising on sustainability or liveability. And all in a small footprint that doesn’t cost the earth.
Choose from 4 mindfully created passive solar design house plans
Homeful’s House Plan Packs are a set of professionally-designed floor plans and helpful resources made for people who want to build small, sustainable homes without the stress, cost blowouts or overwhelm.
The plans are specifically made for:
First home builders or downsizers seeking an affordable starting point for a values-aligned home.
People in new-build developments or housing estates wanting climate-conscious design.
Homeowners adding a second dwelling such as a studio, granny flat or home office, or building a holiday shack.
“Homeful are ahead of the times in their approach to sustainable housing. The end product for us has been a beautiful, cosy home that fulfils our needs, adhered to budget, looks aesthetically great, is ergonomically sound and is wonderful to spend time in. Definitely recommend them.”
— Bronwyn Platz, Central Highlands, Tasmania
“My sister and I worked with Homeful to build two small houses so we could live next to each other. Their ethics are amazing — they care deeply about the environment, make you really think about the space, and don’t try to add an ensuite or ‘spare room’ for the sake of it. We're so happy."
— Sally Nichols, Hobart, Tasmania
Build a home that’s truly ‘enough’ — for your values, lifestyle, budget and the planet
Here at Homeful, we believe in ‘enoughness’: working out what you really need to be happy and healthy, without taking more than your fair share. When our homes are created with this in mind, the positive impacts radiate.
Save money, reduce waste and avoid mid-build blowouts via Australian small house plans that are practical, beautiful and smart.
Access thoughtful house designs so you can estimate costs early, plan with confidence and enjoy a smoother, more sustainable build.
Live in a home that works with the seasons — warm in winter, cool in summer, low on bills.
Build smaller and better, rather than bigger and more expensive, so you can stay debt-light and future-ready.
Make choices that align with your values, without the overwhelm or greenwashing.
Join our nationwide ‘enoughness’ movement, and embrace our philosophy of ‘small home, full life’.
Created by Homeful’s founder: Jane Hiliard
Hey, I’m Jane, an architecturally trained, registered building designer based in lutruwita Tasmania, with 20+ years of experience in residential design.
I’ve designed and reworked thousands of homes to be practical, beautiful and genuinely achievable for everyday people. And I’ve spent years refining what works, what lasts and what genuinely supports a lower-impact life.
Along the way, I’ve become known for championing enoughness, my values-driven approach to sustainable housing that’s regularly featured in national magazines and podcasts across Australia. Because true sustainability starts with choosing enough — not more.
That’s why I founded Homeful and her parent company, Designful. Our small yet brilliant team is dedicated to helping good folks build homes that tread lightly, feel good to live in and won’t cost the earth — financially or environmentally.
How it works — from concept to construction
Step 1
Choose your House Plan Pack
Select from four ready-to-go floor plan options —we have one-, two- and three-bedroom designs, all with a footprint smaller than 120 square metres. Each of the Australian small house plans prioritises passive solar design, energy efficiency and climate-conscious materials to reduce your impact and living costs.
Step 2
Tweak for your specific site
Take your chosen plan to your local draftsperson, designer or builder to finalise for your specific site and council requirements. (If you’re in Tasmania, we can help with this step.) Your House Plan Pack will include a next-steps guide on key questions to ask and common pitfalls to look out for.
Step 3
Build your dream home
Enjoy a faster, more stress-free build with low risk of last-minute design customisations and costly budget blow-outs. Then, settle into a sustainable home that reduces your bills, supports your lifestyle and connection to nature, and brings you joy for years to come.
This is perfect for you if:
You care about building in a way that treads lightly and want a home that’s energy-efficient, space-smart and connected to nature.
You’re seeking easy, well-designed Australian small house plans that tick all the boxes without having to worry about options, process and costs.
You’re building on a modest footprint and want to make the most of your site and your budget.
You live in a warm or cool temperate climate (NSW, Victoria, Tasmania, South Australia or southern WA) and want a climate-appropriate design for your environment.
You want a beautiful home without taking on huge debt, so you still have time, money and freedom to do the things you love.
You want to be part of a growing ‘enoughness’ movement towards simpler, more conscious lifestyles and help inspire generational change.
This may not be a good fit if:
You’re looking for a large, extravagant home focused more on size than simplicity or sustainability.
You’re after a hands-off building experience and want a full-service, traditional design-build process.
You want a fully custom architectural design or complex bespoke alterations beyond what our plans would allow.
You’re not ready to embrace a more sustainable, humble lifestyle and instead value a more conventional or luxury home approach.
You’re looking for the cheapest option or are focused solely on price rather than top-quality design and long-term value.
Two ways to start exploring your build
Option 1
Ponder Pack
A low-cost way to explore if your fave design is right for you, your lifestyle and your site.
Option 2
Complete Pack
Full house plans + everything you need to move forward with building, confidently
Free 1:1 support call with every Complete Pack — limited time only!
~
Free 1:1 support call with every Complete Pack — limited time only! ~
Choose the right House Plan Pack for your lifestyle
Den 1-Bedroom House Plan Pack
A compact one-bed retreat, ideal as a tiny home, studio or shack.
1 bedroom
1 bathroom
60m2 indoor space
90m2 total footprint
Comprehensive floor plans & documentation
Bonus guides to help you build better
+ 1:1 support call
coming soon
Complete Pack:
$3,080 $2,750 (save $330)
available now
Ponder Pack:
$530 $400 (save $130)
Dwell 2-Bedroom House Plan Pack
A right-sized home for singles, couples and small families.
2 bedrooms
1 bathroom
90m2 indoor space
138m2 total footprint
Comprehensive floor plans & documentation
Bonus guides to help you build better
+ 1:1 support call
coming soon
Complete Pack:
$3,410 $3,080 (save $330)
available now
Ponder Pack:
$530 $400 (save $130)
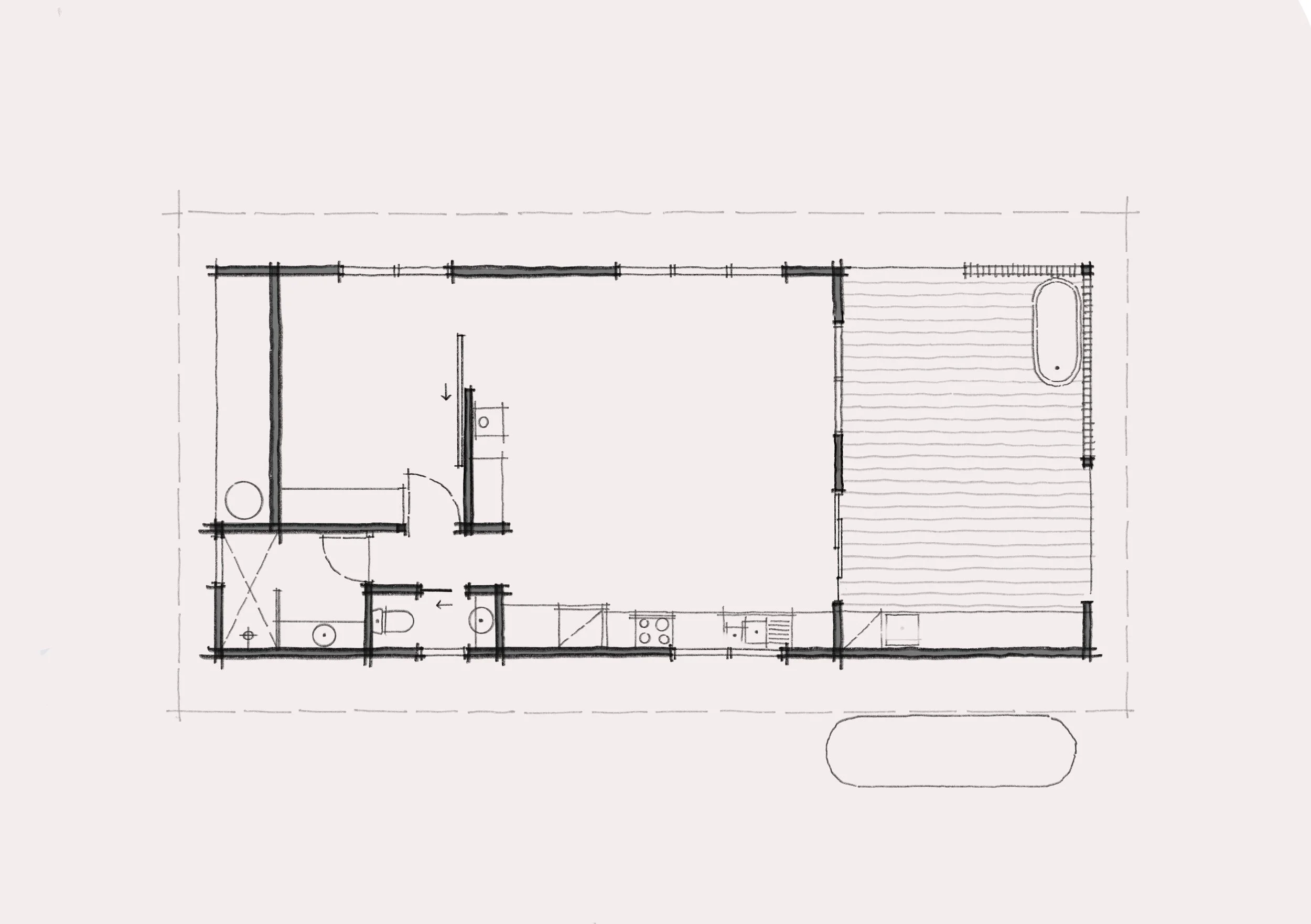
Trail 3-Bedroom House Plan Pack
A streamlined family home, refined to include only what’s necessary.
3 bedrooms
1 bathroom
100m2 indoor space
150m2 total footprint
Comprehensive floor plans & documentation
Bonus guides to help you build better
+ 1:1 support call
coming soon
Complete Pack:
$3,630 $3,300 (save $330)
available now
Ponder Pack:
$530 $400 (save $130)
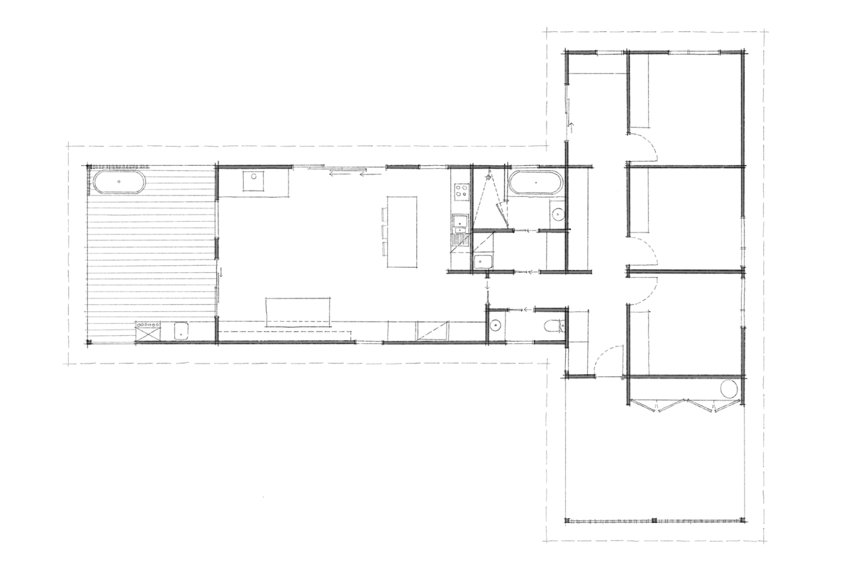
Terrain 3-Bedroom House Plan Pack
An adaptable family home, with a flexible L-shaped design that’s easily customised.
3 bedrooms
1 bathroom
120m2 indoor space
167m2 total footprint
Comprehensive floor plans & documentation
Bonus guides to help you build better
+ 1:1 support call
coming soon
Complete Pack:
$3,630 $3,300 (save $330)
available now
Ponder Pack:
$530 $400 (save $130)
Every Complete House Plan Pack includes:
Key planning documents:
Welcome Guide
An introduction to our approach, values and how to make the most of your Australian small House Plan Pack.
Revit File (DA-Level Design)
Editable design file ready for your local draftsperson, designer or builder to tailor to your site and needs.
Rendered 3D Model Views
Beautiful, high-quality visuals to help you envision the finished home from every angle.
Model Walk-Through
Access to an online platform that allows you to walk through your design in 3D, to get a true sense of the space and layout.
External & Internal Moodboards
Curated sustainability-focused materials and palettes to inspire your fitout choices — inside of the house and out.
Guide to Getting a Homeful Built
Practical, step-by-step advice to navigate approvals, site-specific reports, consultants and council processes with ease.
Plus, four bonus guides to help ensure a smooth and sustainable build:
Bonus: Finding a Block of Land Guide & Checklist
Helping you evaluate potential sites — from zoning and orientation to sustainability factors — so you choose land that sets your dream home up for success.
Bonus: Tips for Engaging with Builders
A builder-ready cheat sheet to help you communicate clearly, ask the right questions and stay on track.
Bonus: Tips for a More Affordable Build
Simple design and planning strategies to help you stay on budget without compromising on values.
Bonus: Values-Led Briefing Guide
A clear framework to help you articulate your core values and priorities, so your design and build team can create a home that truly reflects what matters most to you.
FAQs
Honest answers about additional costs, the build process and what to expect along the way.
“We have felt the vision of the life we so desperately hoped to lead come to life with Homeful’s designs, and we truly cannot wait to start living in this home. The team are all wonderful people doing amazing things for our community and environment — that in itself is the greatest part of working with Homeful. We felt their passion for the 'small home, full life' concept so strongly. We can’t thank Jane and the team enough for this gift.”
— Taylor and Jake, Huon Valley, Tasmania
“We've had the pleasure of building multiple Homeful-designed homes. Their clients come to us well-informed, confident in their decisions, and without the usual signs of decision fatigue that can often slow down a build. This speaks volumes about the quality of guidance and support that Homeful provides throughout the design and planning process. It’s a partnership we truly appreciate and look forward to continuing.”
— Michael Paul, owner of M Paul Builders, Huon Valley, Tasmania
Australian small house plans FAQs
-
Not quite. Any new build — be it custom, kit, module or off-the-plan — requires site-specific reporting and approvals, including development or planning approval, building and plumbing approval.
Your House Plan Pack allows you to seek an initial cost estimate from a builder immediately. It’s a big head start to proceeding with confidence, reducing overwhelm and drastically cutting the cost of planning and scoping your home. The Pack includes professionally-designed floor plans, elevation, roof plan, door and window schedule and some typical Homeful details.
We believe 70% of your home is defined in the design stage — so these plans ensure every corner is thoughtful, functional and aligned with your values.
You’ll also receive a next-steps guide that explains what else you’ll need to complete your project — including the site-specific considerations, such as soil testing, structural engineering, driveways and access and planning and building approvals. You can take your concept package to a local draftsperson, architect or builder to finalise and adapt for your specific site. (If you’re in Tasmania, we can help with this step!) At that point, any technical tweaks or local requirements can be addressed.
-
We’ve created these House Plan Packs because we know not everyone needs (or can afford) a full architecture service. Our packs are best for:
First-home builders wanting to take the first step in creating a values-aligned life for a better future.
Owner-builders seeking an affordable starting point to create a home that reflects their values.
People building in a new development who want a sustainable house design.
Homeowners planning a small secondary dwelling beside an existing home, who want functional, low-impact design.
People who are downsizing and need to simplify their living space without sacrificing comfort, quality or style.
Anyone building for the first time with a focus on sustainable, cost-effective solutions.
-
Yes. You will receive an editable CAD file, which your local building professional can tweak for you. Or book a 1:1 support call and talk to us about tweaks you need to make it just right for you, and we can let you know about our customisation service or our project management service.
-
Each plan prioritises passive solar design, energy efficiency, small footprints and climate-conscious materials — so you can reduce impact and ongoing costs.
-
Our floor plans are thoughtfully designed to minimise complexity, reduce material waste and maximise space efficiency — all of which help keep construction costs down. Plus, they are simple and quick to build.
Because the designs are pre-resolved to DA-level (Development Application), you'll avoid the high costs of starting from scratch with an architect.
Each plan balances form and function with passive solar principles and material efficiency to reduce your long-term energy bills, too. You’ll also receive guidance to help you avoid common budget blowouts and streamline the approval and build process.
-
Technically, yes, the designs can be adapted for local planning requirements across Australia, although they are best suited for builds in warm or cool temperate climates (NSW, Victoria, Tasmania, South Australia or southern WA).
-
Homeful’s designs are created by registered building designers with sustainability and liveability front and centre, they’re not cookie-cutter and they’re not mass-market. Our designs are thoughtful, right-sized and tailored for real Australian lifestyles and climates.
-
You’ll receive an email with your digital plans and documents, plus an invitation to a one-hour support call to help you understand the designs and next steps.
-
No. By purchasing a House Plan Pack, you’ll be armed with the information you need to seek an estimate from a builder sooner, without the big time and money investment of going through the custom house design process.
